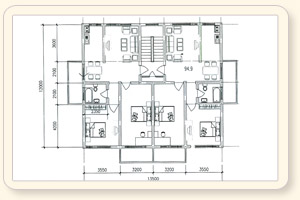
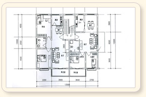
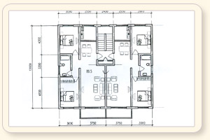
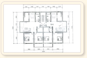
项目简介 | 户型展示 | 配套标准 | 样板房展示
 
   
   
 
上一页